Modern Frontline Golf Villa with Panoramic Views in El Campanario, Estepona
Villa for sale in El Campanario, Estepona
Back to Results

Modern Frontline Golf Villa with Panoramic Views in El Campanario, Estepona

1.875.000 €
  • TMXV1131Ref.
  • 6Beds
  • 4Baths
  • 306 m²Built
  • 550 m²Plot

A stunning, modern south-facing six-bedroom frontline golf villa located in the prestigious El Campanario area of Estepona East. Ideally positioned within a short drive of beautiful beaches, several renowned golf courses, San Pedro de Alcántara, Puerto Banús, and Estepona town centre, this contemporary residence offers luxury living in a prime location.

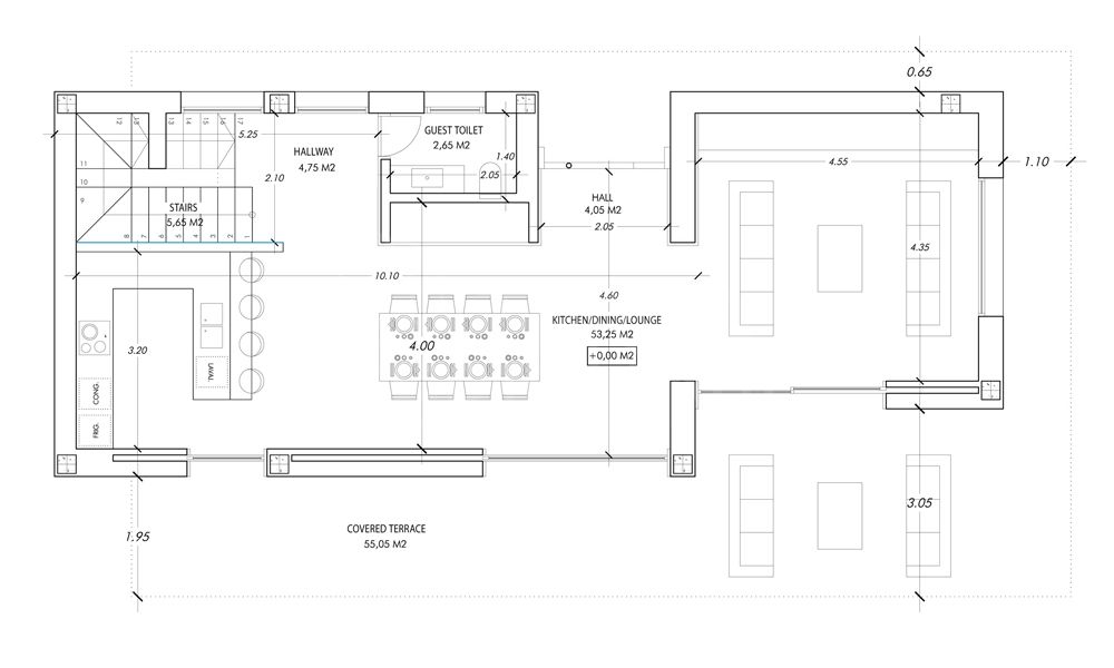
The villa is distributed over three floors and features a welcoming entrance hall leading to a spacious open-plan living and dining area, seamlessly connected to a fully fitted modern kitchen. Large windows and sliding doors open onto a covered terrace with comfortable seating areas, overlooking the private swimming pool and manicured gardens.

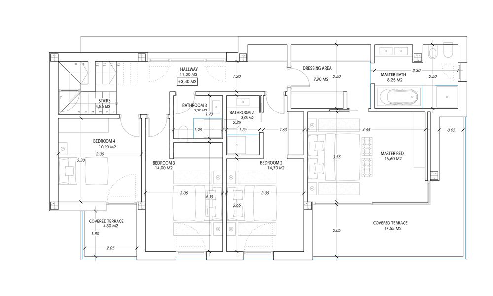
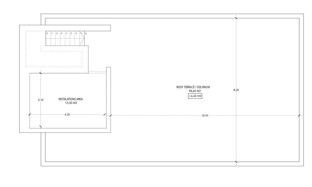
The upper floor comprises four double bedrooms, including two with en-suite bathrooms, while the remaining two share a stylish family bathroom. From this level, there is access to a large solarium complete with a built-in BBQ, Jacuzzi, and a shaded dining area, perfect for entertaining while enjoying panoramic views of the golf course.

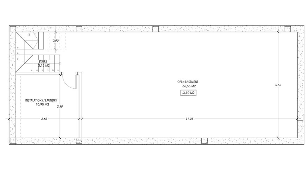
The lower level offers a generous living and entertainment space, two guest bedrooms sharing a bathroom, a laundry room, and ample storage.

Just a short 10-minute drive to Puerto Banús and its boutique shops and fine dining, numerous top-tier 18-hole golf courses, and the sandy beaches within walking distance, this villa boasts an unbeatable location.

Situated next to the exclusive El Campanario Club, residents can enjoy access to premium facilities including a gym, restaurant, indoor pool, and a nine-hole golf course. This property perfectly combines modern design, comfort, and an enviable location, making it an exceptional family home or investment opportunity on the Costa del Sol.

  • Ref: TMXV1131
  • Type: Villa
  • Price: 1.875.000 €
  • Bedrooms: 6
  • Bathrooms: 4
  • Built: 306 m²
  • Interior: 306 m²
  • Terrace: 135 m²
  • Plot: 550 m²
  • Construction Year: 2020
  • Pool: Private
  • Garden: Private
  • Garage: Carport
  • Community: 26 €
  • IBI: 1.122 €
  • Garbage: 185 €
  • EPC: in process
  • Front line golf
  • Fully fitted kitchen
  • Close to shops
  • Close to schools
  • Surveillance cameras
  • Utility room
  • Basement
  • Storage room
  • Alarm
  • Solarium
  • Double glazing
  • Video entrance
  • Barbecue
  • Mountainside
  • Guest toilet
  • Private terrace
  • Living room
  • Water tank
  • Amenities near
  • Golf view
  • Transport near
  • Laundry room
  • Internet - Wi-Fi
  • Covered terrace
  • Fitted wardrobes
  • Air conditioning
  • Garden view
  • Pool view
  • Underfloor heating (bathrooms)
  • Underfloor heating (partial)
  • Close to children playground
  • Close to golf
  • Uncovered terrace
  • Games Room
  • Fully furnished
Back to Results Property Brochure Unbranded Brochure
Adam Neale

"Experience contemporary luxury and unbeatable location in this six-bedroom south-facing villa, just minutes from Puerto Banús, pristine beaches, and world-class golf courses."

send

Similar Searches

El Campanario

El Campanario

If you wish for a stylish but affordable country club environment close to all amenities, El Campanario is the answer. ...

Learn more...