Terrain avec licence approuvée à vendre dans la vieille ville d'Estepona, à 200 mètres de la plage
Terrain à vendre à Vielle Ville d'Estepona, Estepona
Retour aux résultats

Terrain avec licence approuvée à vendre dans la vieille ville d'Estepona, à 200 mètres de la plage

sous offre
649.000 €
  • TMRP11161Réf.
  • 260 m²Construit
  • 168 m²Terrain

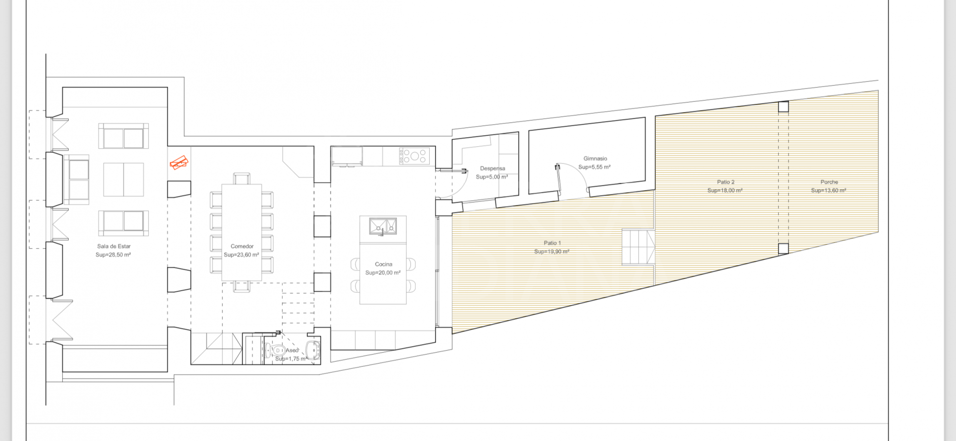
Plans des propriétés et dossiers

Un terrain très bien situé à moins de 200 mètres de la plage principale de La Rada dans le centre de la vieille ville d’Estepona, avec toutes les commodités disponibles à pied et des restaurants et des cafés à seulement un jet de pierre. Le terrain se compose de 168 m2 où vous pouvez construire une grande maison familiale comprenant un patio spacieux au rez-de-chaussée et une terrasse solarium ensoleillée avec du soleil tout au long de la journée. En outre, le projet comprend un grand salon ouvert à l’entrée de la propriété, suivi d’une salle à manger et d’une grande cuisine avec un garde-manger adjacent ; la cuisine a des rideaux de verre donnant sur le patio du rez-de-chaussée, qui a accès à une salle de sport et est distribué sur deux niveaux avec un espace barbecue et des installations de repas en plein air. Le rez-de-chaussée comprend également un vestiaire situé sous l’escalier.
L‘étage intermédiaire comprend 3 grandes chambres doubles, chacune avec une salle de bains privative et des placards encastrés. Deux des chambres donnent sur la rue et disposent de balcons Juliette traditionnels, tandis que la troisième donne sur le patio. Elles ont toutes accès à une salle de télévision/bibliothèque au centre et à une terrasse commune donnant sur le patio et la cuisine d‘été.
Le troisième étage abrite la luxueuse suite parentale avec un grand dressing et une salle de bains privative avec un espace pour une baignoire et une douche, ainsi qu’un accès à une terrasse solarium privée qui bénéficie d’un grand ensoleillement tout au long de la journée et d’un espace pour se détendre tout en profitant de la vue sur les toits de la vieille ville. Estepona offre une large gamme d‘équipements et dispose d’une promenade récemment rénovée, de plages de sable et de nombreuses activités familiales.

  • Réf: TMRP11161
  • Type: Terrain
  • Prix: 649.000 €
  • Construit: 260 m²
  • Terrain: 168 m²
  • Piscine: Non
  • Jardin: Non
  • Garage: Non
  • EPC: en cours
  • À proximité des commerces
  • Près du port
  • Proche des écoles
  • Services de proximité
  • Vue montagne
  • Transport proche
  • Vue panoramique
  • Côté plage
  • Vue sur la rue
  • Parc pour enfants proche
  • Proche de la mer/plage
  • Golf à proximité
  • Vue urbaine
Retour aux résultats Brochure de la propriété Brochure sans logo Tour Virtuel Dossiers
Sandra El Kholti
Sandra El Kholti Email +34 951 318 480

"Opportunité de développement à 150 mètres de la plage"

Envoyer

Recherches associées

Vielle Ville d’Estepona

Vielle Ville d’Estepona

Composé d'un labyrinthe compact de passages sinueux et de places ouvertes et verdoyantes, le centre historique de la ...

En savoir plus...