Участок с лицензией на продажу в старом городе Эстепоны, в 200 метрах от пляжа
Земельный участок на продажу в Старый город Эстепоны, Эстепона
Вернуться к результатам

Участок с лицензией на продажу в старом городе Эстепоны, в 200 метрах от пляжа

в процессе сделки
649.000 €
  • TMRP11161Ссылка.
  • 260 m²Построено
  • 168 m²Участок

Документы на недвижимость и планы этажей

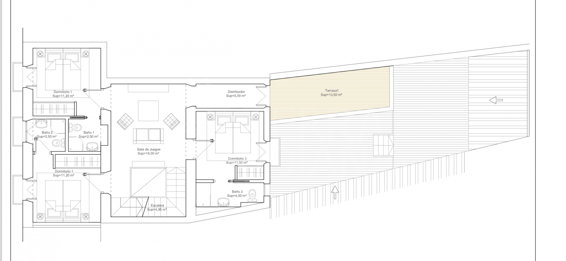
Очень удачно расположенный участок в 200 метрах от пляжа Ла Рада в центре старого города Эстепона, со всеми удобствами, ресторанами и кафе в двух шагах. Участок площадью 168 м2 позволяет построить большой семейный дом, включая просторный внутренний дворик на первом этаже и солнечную террасу-солярий, освещаемую солнцем в течение всего дня. Кроме того, проект включает большую гостиную открытой планировки, за которой следует столовая и большая кухня с прилегающей кладовой; кухня имеет стеклянные занавески для выхода во внутренний дворик на первом этаже, который имеет доступ к тренажерному залу и распределен по разным уровням с зоной барбекю и обеденной зоной на открытом воздухе. На первом этаже также имеется гардеробная, расположенная под лестницей.
На среднем этаже расположены 3 большие спальни с двуспальными кроватями, каждая с собственной ванной комнатой и встроенными шкафами, две из них выходят на улицу и имеют традиционные балконы Juliette, а третья выходит во внутренний дворик. Все они имеют доступ к комнате с телевизором/библиотекой в центре и выход на общую террасу с видом на внутренний дворик и летнюю кухню.
На третьем этаже находится роскошная главная спальня с большим гардеробом и ванной комнатой с местом для ванны и душа, а также выход на частную террасу-солярий, которая освещается солнцем в течение всего дня и имеет место для отдыха, наслаждаясь видом на крыши старого города. Эстепона предлагает широкий спектр услуг и предлагает недавно отремонтированную набережную, песчаные пляжи и множество семейных развлечений.

  • Ссылка: TMRP11161
  • Вид: Земельный участок
  • Цена: 649.000 €
  • Построено: 260 m²
  • Участок: 168 m²
  • Бассейн: Нет
  • Сад: Нет
  • Гараж: Нет
  • EPC: В процессе
  • Рядом с магазинами
  • близко к порту
  • Рядом со школой
  • Культурно-бытовые объекты рядом
  • Вид на горы
  • Общественный транспорт рядом
  • Панорамный вид
  • Море рядом
  • Вид на улицу
  • Детская площадка рядом
  • Рядом море/пляж
  • Возле поля для гольфа
  • Городской пейзаж
Вернуться к результатам Брошюра по недвижимости Брошюра без логотипа Виртуальный Тур Документы
Theodora Delville
Theodora Delville Email +34 951 318 480

"Возможность застройки в 150 метрах от пляжа"

отправить

Похожий поиск

Старый город Эстепоны

Старый город Эстепоны

Исторический центр Эстепоны с его тесным лабиринтом извилистых ...

Узнать больше...